Les locaux de la Colonie sur plan
Des visites sur place peuvent être organisées. N’hésitez pas à nous contacter !

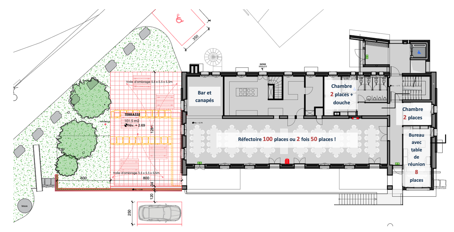
- Le Rez supérieur comporte un grand réfectoire d’une capacité de 100 places assises. Il est possible de le diviser en deux pièces égales. De plus, il est équipé d’un dispositif de projection (projecteur, écran, sonorisation, lecteur dvd/blue-ray/streaming, TV HD).
- Une zone détente / Bar d’une capacité de 20 personnes équipée d’un piano droit (et son tabouret), un grand frigo et évier. Une zone idéale pour poursuivre la soirée en musique.
- Il donne l’accès au grand balcon (16 places assises) et une terrasse pour recevoir une centaine de convives.
- Un grand bureau de direction avec une table de réunion pour 8 à 10 personnes.
- 2 chambres à 2 avec WC handicapé ainsi que 4 WC et 3 urinoirs sur l’étage.
- Une cuisine professionnelle entièrement équipée

- Une salle de projection de 55 places assises équipée d’un projecteur, Blue-Ray, DVD, TV HD, Dolby 5.1
- Deux salles de réunion de 12 et 16 places assises.
- Une salle de jeux entièrement équipée (baby foot, TV, Livres, canapés, jeux …)
- Un vestiaire d’une capacité totale de 80 places.
- Accès aux personnes à mobilité réduite par l’ascenseur.

- Chaque étage comporte 12 chambres totalement équipées en literie nordique (3 chambres à 2, 7 chambres à 4 et 2 chambres à 6 personnes). Tous nos lits sont à étage.
- Chaque chambre possède étagères, table et chaise.
- Sur chaque étage, il existe la double possibilité de fusionner 2 chambres à 4 pour en faire de petits dortoirs à 8.
- Chaque étage possède 8 douches en cabine, ainsi qu’une zone de 8 lavabos et 4 WC et 3 urinoirs.
- Une salle de bain ainsi qu’un WC ont été spécialement aménagés dans un espace accompagnateurs (en bout de couloir, à proximité de 2 chambres pour 10 personnes).
- Nécessaire de nettoyage à chaque étage.
- Chaque étage est en plus pourvu d’un WC handicapé, ainsi que d’un accès facilité par ascenseur.

- Un terrain multisports devant la Colonie avec gazon synthétique (football, basketball, badminton, volleyball, tennis) et un terrain de football en terre battue sous la Colonie.
- Une zone de pique-nique dans la cour (2 tables et 5 bancs), une nouvelle zone (1 table et 2 bancs) à proximité du mur de grimpe, une terrasse ombragée avec la possibilité d’avoir des tables pour y manger.
- Un mur de grimpe, un arbre à grimper, un hamac géant, un jeu d’échecs géant et 4 tables de ping-pong et un toboggan.
- La forêt entoure la colonie ainsi qu’un parcours vita.
- 4 places de parc réservées aux locataires à proximité immédiate du bâtiment et une vingtaine de places au bord de la route d’accès.
- L’ensemble du bâtiment est sous alarme incendie (détecteurs de fumées dans toutes les pièces).
- Le bâtiment est entièrement chauffé à l’aide d’énergie renouvelable (panneau solaire et pellets).
- Câble TV HD.
- Internet par fibre et Wifi (protégé par une clé d’accès et filtré).
- Possibilité de faire des réveils en musique (haut-parleurs dans les étages pilotés depuis le bureau).
- Chaque étage est en plus pourvu d’un WC handicapé, ainsi que d’un accès facilité par ascenseur.